ARCHICRÉA DP, atelier d’architecture, a été crée par Hervé POSNIC, président, et Jean DO NASCIMENTO, directeur général, tous deux Architectes D.P.L.G.
+331 60 22 83 86
contact@archicreadp.fr

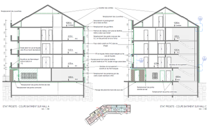
TRAVAUX D’AMELIORATION ENERGETIQUE DE 60 LOGEMENTS

HomeLogementsTRAVAUX D’AMELIORATION ENERGETIQUE DE 60 LOGEMENTS

Lieu

7.9.11.13 RUE DE LA THEROUANNE

77380 COMBS LA VILLE

Maître d’ouvrage

TROIS MOULINS HABITAT

Mission

Conception et réalisation

Milieu occupé

Surface

N/A

Coût

1 869 810.87 € H.T

Calendrier

2024